ПОЗВОНИТЬ +7 495 960 34 54

Коттедж в поселке Павлово

ЛОТ 88075 ЕС
location_on Новорижское ш. (14 км)

Продается загородный дом общей площадью 1450 кв.м. Новорижское шоссе, 14 км. Коттеджный поселок Павлово. Этот дом создан по индивидуальному проекту, совмещая передовые технологии и безупречную эстетику. Фасад, облицованный шамотной плиткой, и австрийские деревянные стеклопакеты подчеркивают статус и долговечность. В интерьере использованы редкие материалы: итальянские панели ручной работы, массив гикори, кухня с гранитом и подсвеченными вставками из оникса. Встроенная техника General Electric Monogram и Miele, сантехника Agape и Villeroy & Boch отражают высокий уровень оснащения. Шестнадцатиметровый бассейн с атмосферной подсветкой на 28 000 звезд и роскошная SPA-зона с мраморным хаммамом становятся центром релакса. Кинозал на 10 мест с акустикой из США обеспечивает кинематографический звук. В доме установлены системы вентиляции и увлажнения Buhler-ANS. Участок 35 соток граничит с лесом, оформлен ландшафтными решениями с естественным рельефом, брусчаткой из малинового кварцита и дизайнерским освещением Robers. На территории - детская и спортивная зоны, приватная ротанговая беседка, дом для приемов 160 кв. м. и гостевой дом 140 кв.м. с гаражом на 2 м/м и крытой парковкой на 2 м/м. Объект оснащён собственной подстанцией Generac 28 кВт, выделенной мощностью 48 кВт, охраной и видеонаблюдением.

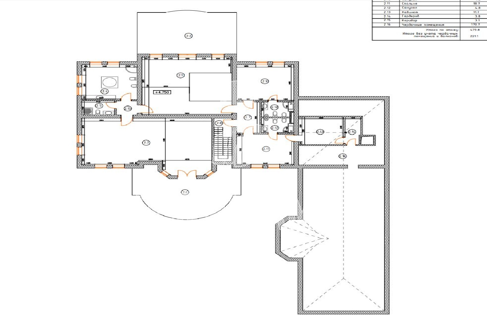
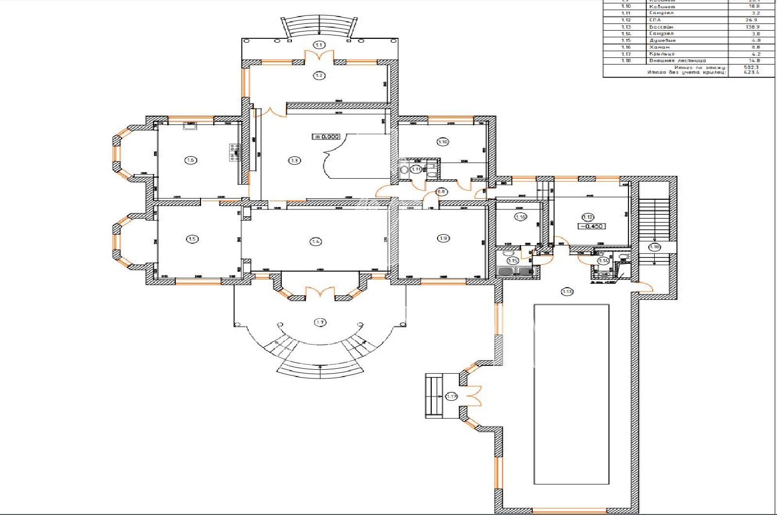
 Планировка:

1 этаж - прихожая с гардеробной, парадный холл с резной лестницей, кухня, столовая, гостиная, гостевой с/у, два кабинета, СПА с с/у, хамам, бассейн с выходом на участок,

2 этаж - холл второго этажа с выходом на балкон, хозяйская спальня с гостиной, гардеробной, женской ванной комнатой и мужским с/у, спальни со своим с/у, спальня с кабинетом и с/у,

Мансарда - 3 спальни, каждая со своим с/у, игровая комната, гостиная.

Цоколь - кинозал, две гардеробные, постирочная, кладовая, котельная.

$
£
6.163.131 $
4.250 $ / м2
500.000.000
344.828 / м2
4.669.406 £
3.220 £ / м2
5.257.695 €
3.626 € / м2
Позвонить
Детали лота:
Площадь общая:
1450 м2
Площадь участка:
35 соток
Количество спален:
6
Бассейн:
Есть
Сауна:
Есть
Состояние:
с отделкой
Смотреть еще
посмотреть планировку
ondemand_video посмотреть видео
ondemand_video посмотреть видео посёлка
Поселок на карте
Похожие предложения:
Посёлок Павлово

Коттеджный поселок Павлово - это первая очередь строительства мультиформатного коттеджного поселка. Площадь посёлка 70 Га. Полностью построенный элитный комплекс с единной концепцией.  Инфраструктура внутренняя: 4 детских площадки, спортивная площадка,прогулочная лесная зона с асфальтированными дорожками, беседками и лавочками, набережная вдоль озера. КПП охраняется ЧОП, постоянное патрулирование и видеонаблюдение территории поселка. Все центральные коммуникации, своя служба эксплуатации. Инфраструктура внешняя: ТРЦ Павлово Подворье находится в шаговой доступности и включает  в себя: 10 ресторанов, фитнесс Ворлд Класс 2000 кв.м., отделение сбербанка, супермаркет Зеленый перекресток, химчистка, аптека, детский клуб, мини гольф-поле. Павловская гимназия и детский сад. Рядом расположены поселки: Павлово-2, Маленькая Италия, Пенаты, Княжье Озеро, Ренессанс Парк.

Полное описание
вы можете отрегулировать показ похожих этими кнопками
close