ПОЗВОНИТЬ +7 495 960 34 54

Коттедж в поселке Ренессанс парк

ЛОТ 58624 МТ
location_on Новорижское ш. (18 км)

Продажа загородного дома общей площадью 980 кв.м. Новорижское шоссе, 18 км от МКАД. Коттеджный поселок Ренессанс Парк. Дом построен в 2 этажа, с отделкой. Дизайн интерьера воплощает утонченный минимализм, с использованием высококачественных материалов — натурального камня, дерева, керамики с бетонной текстурой, металла и дымчатого стекла. За счет панорамного остекления и лаконичного фасада в натуральных цветах, дом вписывается в природное окружение. В резиденцию будет встроен гараж для 4 машин. На прилесном участке 90 соток выполнены ландшафтные работы.

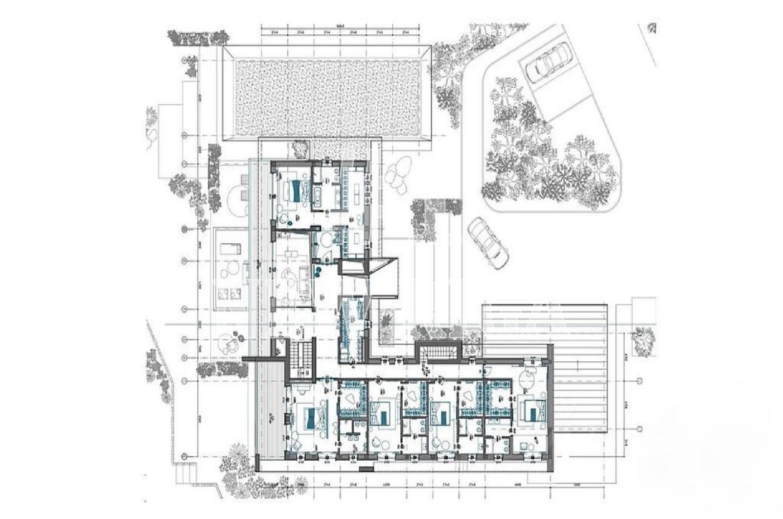
Планировка:

1 этаж - гостиная-столовая-кухня, вторая гостиная, котельная, санузел, гардеробная, кабинет с санузлом и выходом на террасу, СПА-зона с бассейном, сауной, купелью и выходом на террасу, тренажерный зал, санузел, 2 квартиры для персонала, постирочная, гараж на 4 м/м, 

2 этаж - 5 спален с санузлами и гардеробными, 2 гардеробные, гостиная, выход на 2 террасы.

$
£
15.778.367 $
16.100 $ / м2
1.200.000.000
1.224.490 / м2
11.668.611 £
11.907 £ / м2
13.389.032 €
13.662 € / м2
Позвонить
Детали лота:
Площадь общая:
980 м2
Площадь участка:
90 соток
Количество спален:
5
Бассейн:
Есть
Сауна:
Есть
Состояние:
с отделкой
Смотреть еще
посмотреть планировку
ondemand_video посмотреть видео посёлка
Поселок на карте
Похожие предложения:
Посёлок Ренессанс парк

Коттеджный поселок Ренессанс парк - это элитный коттеджный поселок в 19 км от Москвы по Новорижскому шоссе. На территории 130 Га расположились 330 участков площадью от 12 соток до 3 Га с особняками от 350 до 3000 кв.м. Часть участков полностью лесные с вековыми соснами.

Инфраструктура внутренняя: Детская и спортивная площадки. В центре поселка есть большой парк с озером, песчанным пляжем, волейбольной плащадкой и рестораном. Поселок охраняется ЧОПом, круглосуточное патрулирование и КПП.

Инфраструктура внешняя: Аутлет Новая Рига

,в непосредственной близости от поселка имеется 5 общеобразовательных школ и 3 детских садика, множество ресторанов, кафе, спортивных центров, магазинов, бутиков. 

Рядом находятся поселки: Резиденция Бенилюкс, Монтевиль, Резиденция Монолит, Агаларов Эстейт, Миллениум Парк, Гринфилд, Шервуд.

Полное описание
вы можете отрегулировать показ похожих этими кнопками
close