ПОЗВОНИТЬ +7 495 960 34 54

Коттедж в поселке Ренессанс парк

ЛОТ 80358 МТ
location_on Новорижское ш. (19 км)

Продажа загородного дома общей площадью 520 кв.м. Новорижское шоссе, 18 км от МКАД. Коттеджный поселок Ренессанс Парк. Дом построен в 2 этажа из кирпича на монолитном фундаменте и с монолитными перекрытиями, фасад здания облицован каменным клинкером и деревянной доской, сделана входная группа с широкой лестницей и навесом под автомобиль, крыша - композитная черепица. В данный момент идут чистовые отделочные работы внутри дома. В дом подключены и заведены все центральные коммуникации (газ, электричество, водоснабжение, канализация), сделана стяжка, выровнены стены. На территории участка расположен гостевой дом под ключ с банным комплексом. Площадь участка 21 соток.

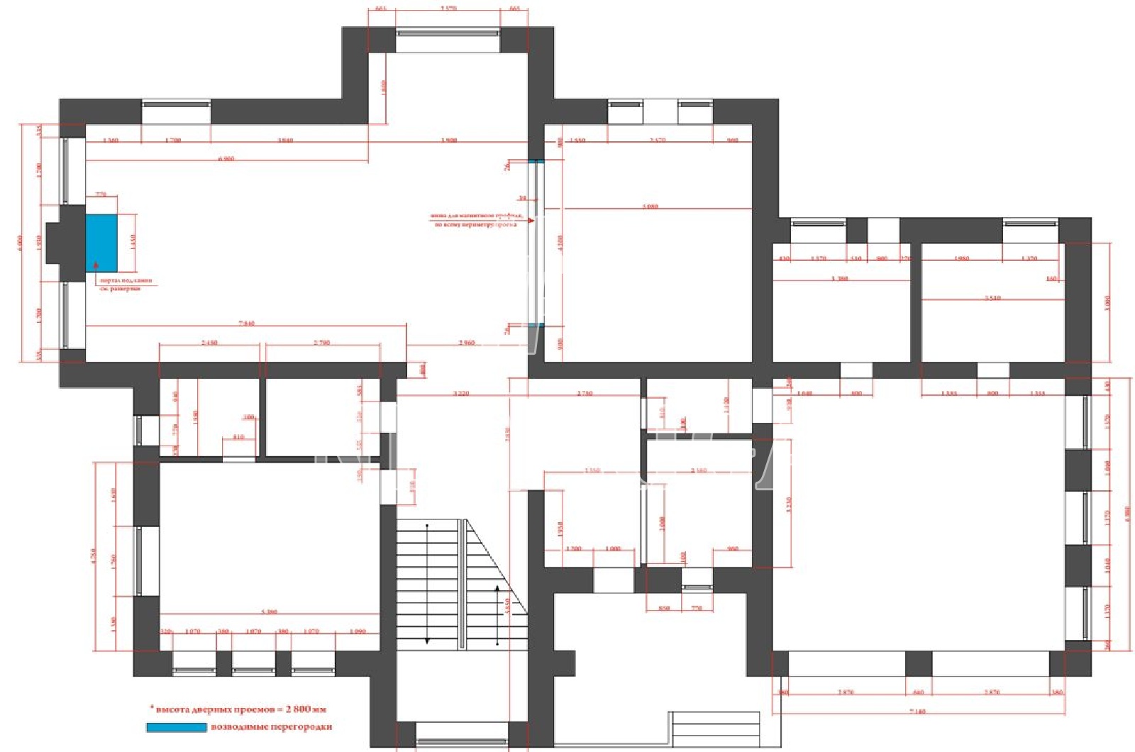
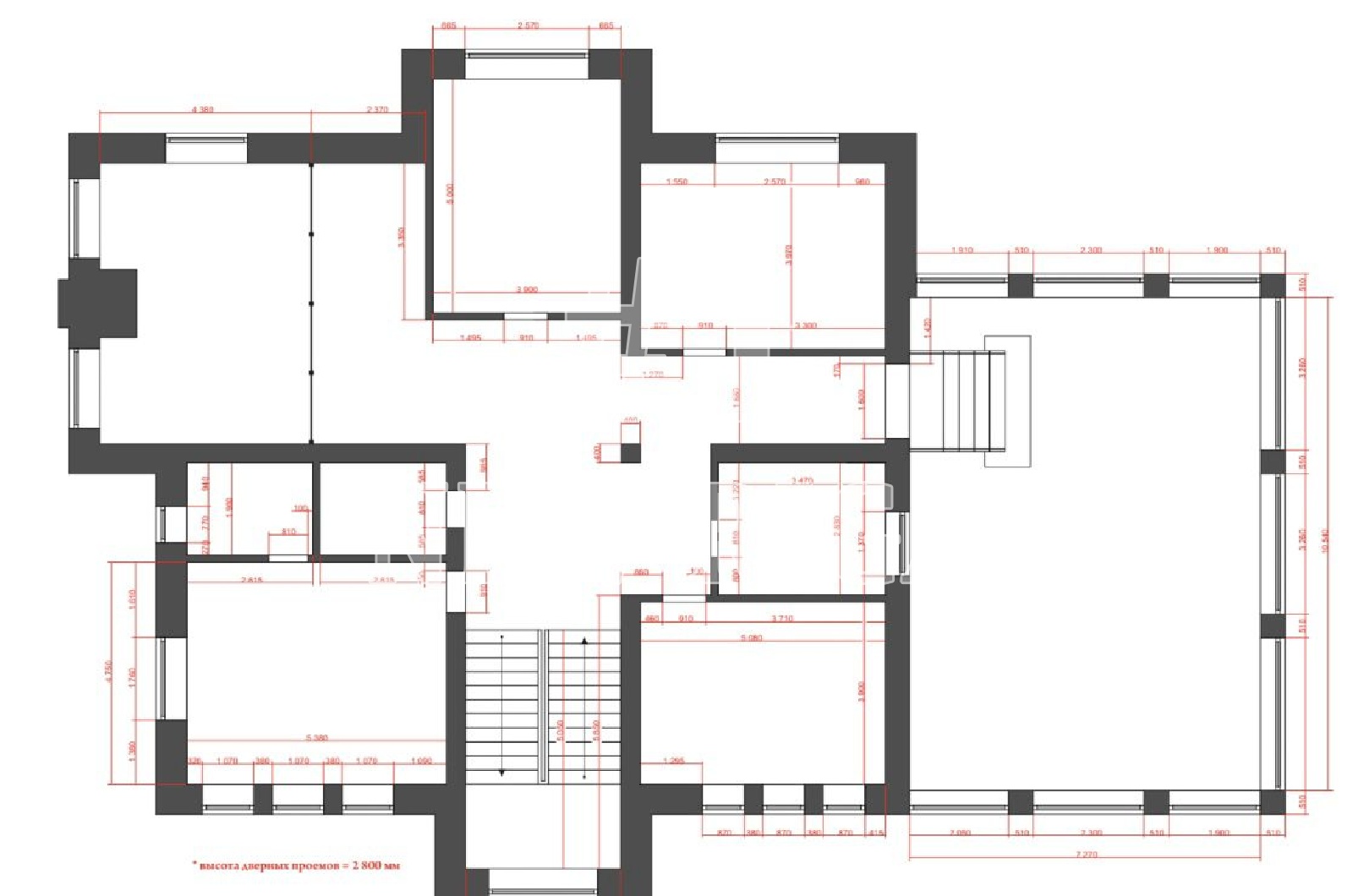
Планировка:

1 этаж - прихожая, холл, гостиная, кухня, гардеробная, спальня, санузел с душевой, котельная, прачечная,

2 этаж - мастер-спальня с гардеробной и санузлом с ванной, 2 спальни с санузлом с душевой, комната отдыха/спортивный зал.

Гостевой дом - гостиная-кухня со вторым светом, 2 спальни, спа-зона с бассейном и баней. 

\"page6image62512240\"\"page6image62505376\"

$
£
3.285.751 $
6.319 $ / м2
250.000.000
480.769 / м2
2.421.519 £
4.657 £ / м2
2.796.067 €
5.377 € / м2
Позвонить
Детали лота:
Площадь общая:
520 м2
Площадь участка:
21 сотка
Состояние:
без отделки
посмотреть планировку
ondemand_video посмотреть видео посёлка
Поселок на карте
Похожие предложения:
Посёлок Ренессанс парк

Коттеджный поселок Ренессанс парк - это элитный коттеджный поселок в 19 км от Москвы по Новорижскому шоссе. На территории 130 Га расположились 330 участков площадью от 12 соток до 3 Га с особняками от 350 до 3000 кв.м. Часть участков полностью лесные с вековыми соснами.

Инфраструктура внутренняя: Детская и спортивная площадки. В центре поселка есть большой парк с озером, песчанным пляжем, волейбольной плащадкой и рестораном. Поселок охраняется ЧОПом, круглосуточное патрулирование и КПП.

Инфраструктура внешняя: Аутлет Новая Рига

,в непосредственной близости от поселка имеется 5 общеобразовательных школ и 3 детских садика, множество ресторанов, кафе, спортивных центров, магазинов, бутиков. 

Рядом находятся поселки: Резиденция Бенилюкс, Монтевиль, Резиденция Монолит, Агаларов Эстейт, Миллениум Парк, Гринфилд, Шервуд.

Полное описание
вы можете отрегулировать показ похожих этими кнопками
close