ПОЗВОНИТЬ +7 495 960 34 54

Таунхаус в поселке Парк Фонте

ЛОТ 82413 ЗГ
location_on Новорижское ш. (27 км)

Продажа загородного таунхауса площадью 277 кв.м. Новорижское шоссе, 27 км от МКАД. Коттеджный поселок Парк Фонтэ. Выполнена черновая отделка: разведена электрика, выровнены стены, подготовлены под чистовую. Частично закуплена мебель и техника (телевизоры Samsung 75, Sony 60, Samsung 45; мебель Bo’concept, угловой диван 4×2 м, дизайнерские кресла, двуспальная кровать с итальянским матрасом, кожаный диван IKEA, тумба под ТВ). Есть выход на эксплуатируемую кровлю - можно обустроить летнюю зону отдыха. На 2 и 3 этажах - открытые балконы. Предусмотрено место для камина. Участок 1,51 сотки.

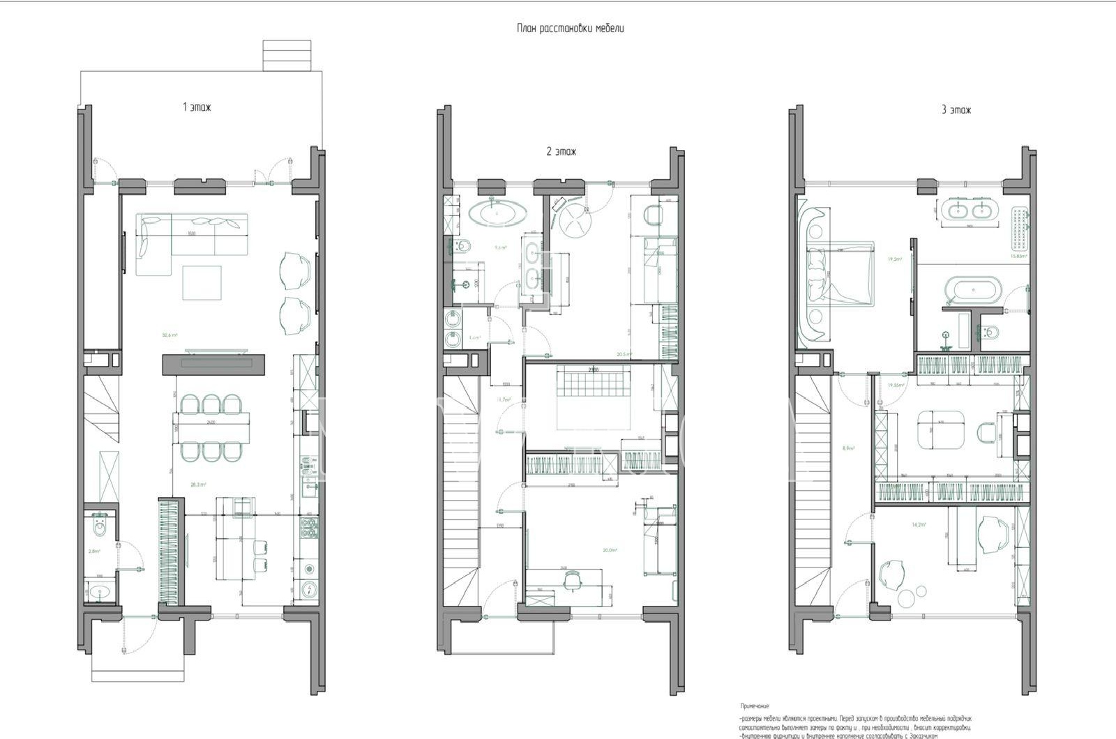
Планировка:

1 этаж - гостиная, кухня-столовая с камином, кабинет, санузел, терраса, котельная,
2 этаж - холл, 2 спальни с с/у, гардеробная, балкон,
3 этаж - 2 спальни, кабинет, санузел.

$
£
741.660 $
2.677 $ / м2
59.500.000
214.801 / м2
555.592 £
2.006 £ / м2
646.847 €
2.335 € / м2
Позвонить
Детали лота:
Площадь общая:
277 м2
Площадь участка:
1.51 сотка
Количество спален:
4
Состояние:
без отделки
посмотреть планировку
Поселок на карте
Похожие предложения:
Посёлок Парк Фонте

Коттеджный поселок Парк Фонте — это элитный поселок таунхаусов в 27 км по Новорижскому шоссе. На территории поселка 10 Га располагаются 182 3-х этажных таунхауса площадью от 270 до 310 кв.м. на участках от 2 до 9 соток. Все таунхаусы выполнены с панорамным остеклением. Прямолинейная геометрия фасадов эффектно подчеркнута материалами контрастных цветов, форм и фактур.

Внутренняя инфраструктура:
Аутлет Новая Рига, гостевая парковка, детская игровая площадка, зона отдыха с озером, спортивная площадка. Круглосуточная охрана.

Внешняя инфраструктура:
ТЦ Княжий двор, Ломоносовская школа.

Рядом поселки: Агаларов Эстейт

,
Покровский, Риверсайд, Княжье Озеро, Новорижский.

Полное описание
вы можете отрегулировать показ похожих этими кнопками
close