ПОЗВОНИТЬ +7 495 960 34 54

Коттедж в поселке Резиденции Бенилюкс

ЛОТ 53444 В
location_on Новорижское ш. (18 км)

Аренда загородного дома общей площадью 1000 кв.м. Новорижское шоссе, 18 км от МКАД. Коттеджный поселок Бенилюкс. Дом построен в 2 этажа, под ключ. Полностью меблирован и оснащен всей необходимой техникой ведущих производителей. Планировочные решения тщательно продуманы: в каждой спальне есть отдельная гардеробная, санузел и балкон. Гостиная, каминный зал и панорамные окна станут центром притяжения для домочадцев. Кухня и столовая имеют вид на собственный лес с выходом на террасу. Участок площадью 109 соток с ландшафтным дизайном и рекой. Из них 33 сотки вековой хвойный лес. На территории обустроены пруд, пляж, баня, зона отдыха и барбекю, крытое парковочное место для двух автомобилей.

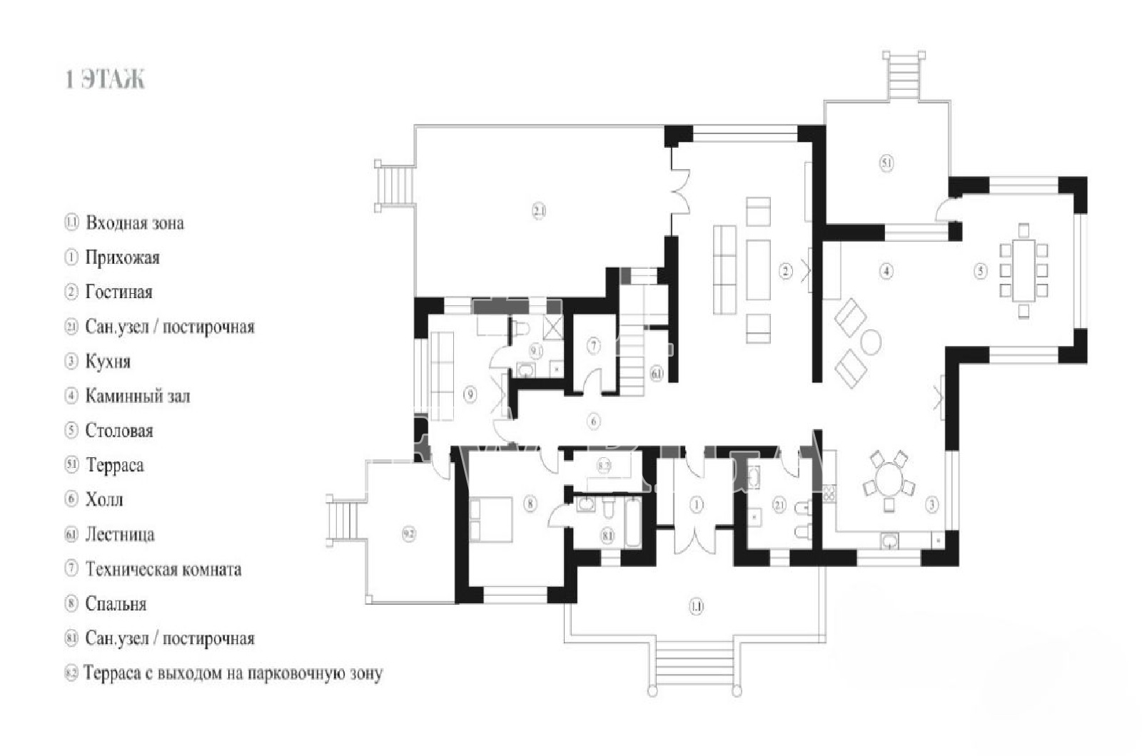
Планировка:

1 этаж - холл, гостиная, кухня, камины зал, столовая, терраса, с/у, постирочная, спальня с/у, техническое помещение,

2 этаж - холл, гостиная, 5 спален с с/у и гардеробными, кабинет,  балкон.

Лот сдан
$
£
19.050 $ /мес.
19 $ / м2
1.500.000 /мес.
1.500 / м2
14.224 £ /мес.
14 £ / м2
16.322 € /мес.
16 € / м2
Позвонить
Детали лота:
Площадь общая:
1000 м2
Площадь участка:
109 соток
Количество спален:
6
Состояние:
с отделкой
посмотреть планировку
ondemand_video посмотреть видео посёлка
Поселок на карте
Похожие предложения:
Посёлок Резиденции Бенилюкс

Резиденция Бенилюкс - элитный поселок 20 км от МКАД по Новорижскому шоссе. На территории поселка 150 га построены 270 коттеджей площадью от 300 кв.м. до 3000 кв.м. на участках от 20 соток до 2 га в разной современной и классической архитектуре. Территория поселка примыкает к своей лесопарковой зоне, которая находится внутри поселка и занимает треть территории. В поселке протекает река Беляна, которая образует живописный водоем. Построены 270 коттеджей площадью от 300  кв.м. на участках от 20 соток в разной современной и классической архитектуре. Белый, невысокий забор-штакетник, богатое озеленение общественных зон и тротуар - вот отличительные черты этого поселка.

Инфраструктура внутренняя: 3 детские площадки, прогулочная зона в лесу, ресторан Озон с грилем на берегу речки. В поселке все централизованные коммуникации, магистральный газ. Интернет по оптическому волокну.  Въезд через КПП по пропускам. Охраняется ЧОП с патрулированием и видеонаблюдением. Своя служба эксплуатации поможет в решении бытовых проблем.

Инфраструктура внешняя: чтобы не беспокоить жителей все спортивно–общественные здания вынесены за территорию жилых резиденций. Фитнесс-клуб с бассейном, 4 теннисных корта, английский детский сад, музыкальная школа, минимаркет, кафе. ТРЦ Княжье Озеро и ТЦ Павлово Подворье в 5 минутах езды на автомобиле.

Рядом поселки: Ренессанс парк, Балтия, Шервуд, Миллениум Парк, Резиденция Монолит, Гринфилд, Риверсайд, Монтевиль, Мэдиссон Парк, Княжье Озеро.

Полное описание
вы можете отрегулировать показ похожих этими кнопками
close