ПОЗВОНИТЬ +7 495 960 34 54

Коттедж в поселке Грин Хилл

ЛОТ 82492 ЗГ
location_on Новорижское ш. (30 км)

Продажа загородного дома площадью 380 кв. м. Новорижское шоссе, 30 км от МКАД. Коттеджный поселок Грин Хилл. Дом двухэтажный, в состоянии white box. Архитектура дома показывает европейскую стилистику, а фасад с большим количеством окон предполагает просторное наполнение светом, широкий обзор участка и связь с природой. Просторные общественные зоны на первом этаже, приватные спальные комнаты на втором, всё продумано под комфорт семейной жизни. Участок площадью 15 соток даёт возможность устроить ландшафтный дизайн, зону отдыха, террасу или детскую площадку - формат дом + сад с высокими возможностями для индивидуализации. Дом расположен в составе коттеджного посёлка с продуманной инфраструктурой и единым архитектурным стилем, что обеспечивает качественное окружение и высокий уровень жизни.

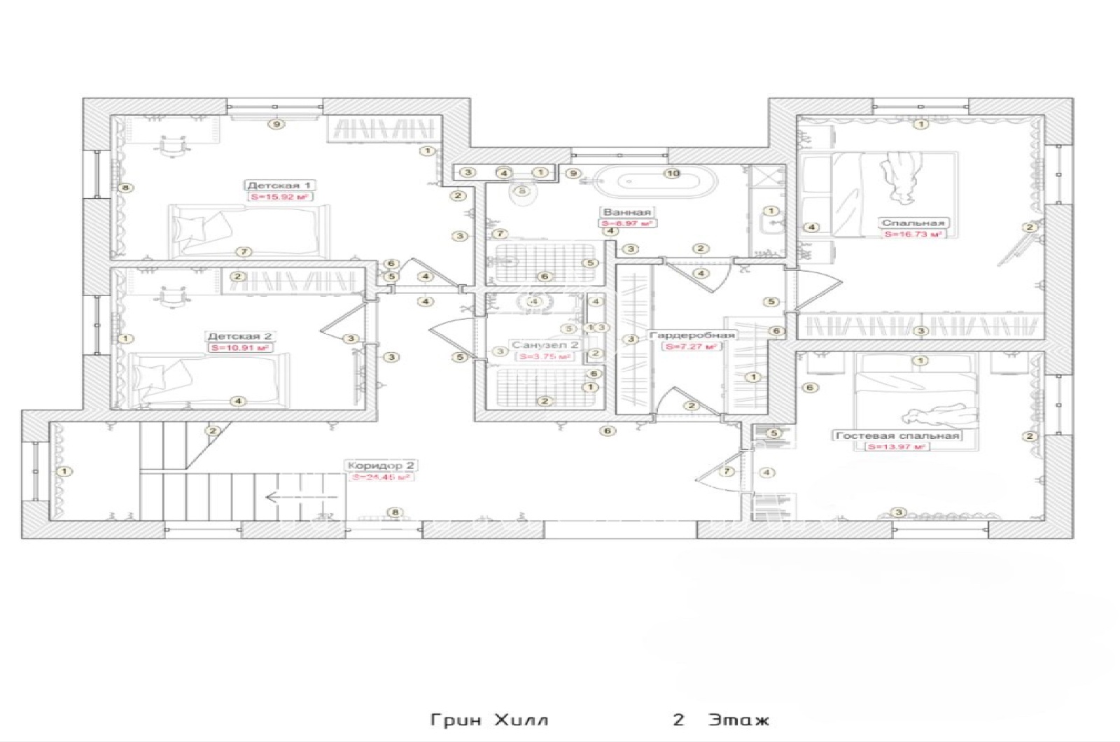
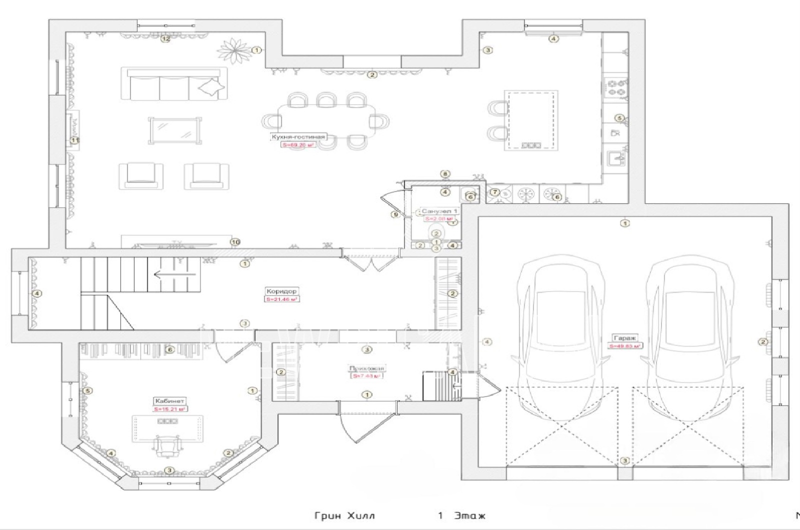
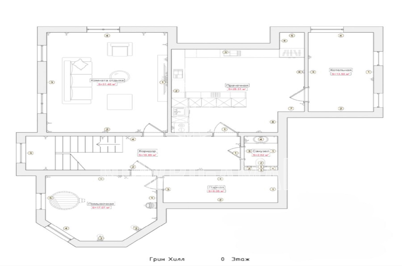
Планировка:

1 этаж - кухня-гостиная, столовая, с/у, кабинет, прихожая, гараж на 2 м/м,

2 этаж - 2 детские спальни, спальня с гардеробной и ванной комнатой, гостевая спальня, с/у, 

Цоколь - комната отдыха, прачечная, котельная, помывочная, парная, с/у.

$
£
1.023.130 $
2.692 $ / м2
79.500.000
209.211 / м2
772.055 £
2.032 £ / м2
879.972 €
2.316 € / м2
Позвонить
Детали лота:
Площадь общая:
380 м2
Площадь участка:
15 соток
Количество спален:
4
Сауна:
Есть
Состояние:
без отделки
Смотреть еще
посмотреть планировку
Поселок на карте
Похожие предложения:
Посёлок Грин Хилл

Коттеджный поселок Грин Хилл — это элитный поселок в 29 км по Новорижскому шоссе. На территории поселка 29 Га расположилось 122 домовладения площадью от 350 до 480 кв.м. на участках от 15 до 22 соток. В основе поселка лежит единая архитектурная концепция застройки в европейском стиле.

Внутренняя инфраструктура


: прогулочная зона в центре поселка с прудами, беседками и лавочками. Выход в лес. 2 спортивные и 2 детские площадки.


Внешняя инфраструктура:
ТЦ Княжий двор, Школа Wunderpark.


Рядом поселки:
Аносино, Крона, Белая Гора, Новорижский, Княжье Озеро.

Полное описание
вы можете отрегулировать показ похожих этими кнопками
close