ПОЗВОНИТЬ +7 495 960 34 54

Коттедж в поселке Трувиль

ЛОТ 82710 ЗГ
location_on Минское ш. (15 км)

Продажа загородного дома общей площадью 914 кв. м. Минское шоссе, 15 км от МКАД. Коттеджный поселок Трувиль.  Дом построен в 4 этажа, без отделки со вторым светом.  Участок 30 соток. Отдельно стоящий гараж 162 кв.м. на 2 м/м.

Планировка:

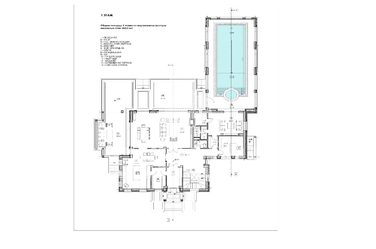
1  этаж - гостиная, терраса, столовая, кухня, кабинет, комната отдыха, c/у, гардеробная, сауна, бассейн.

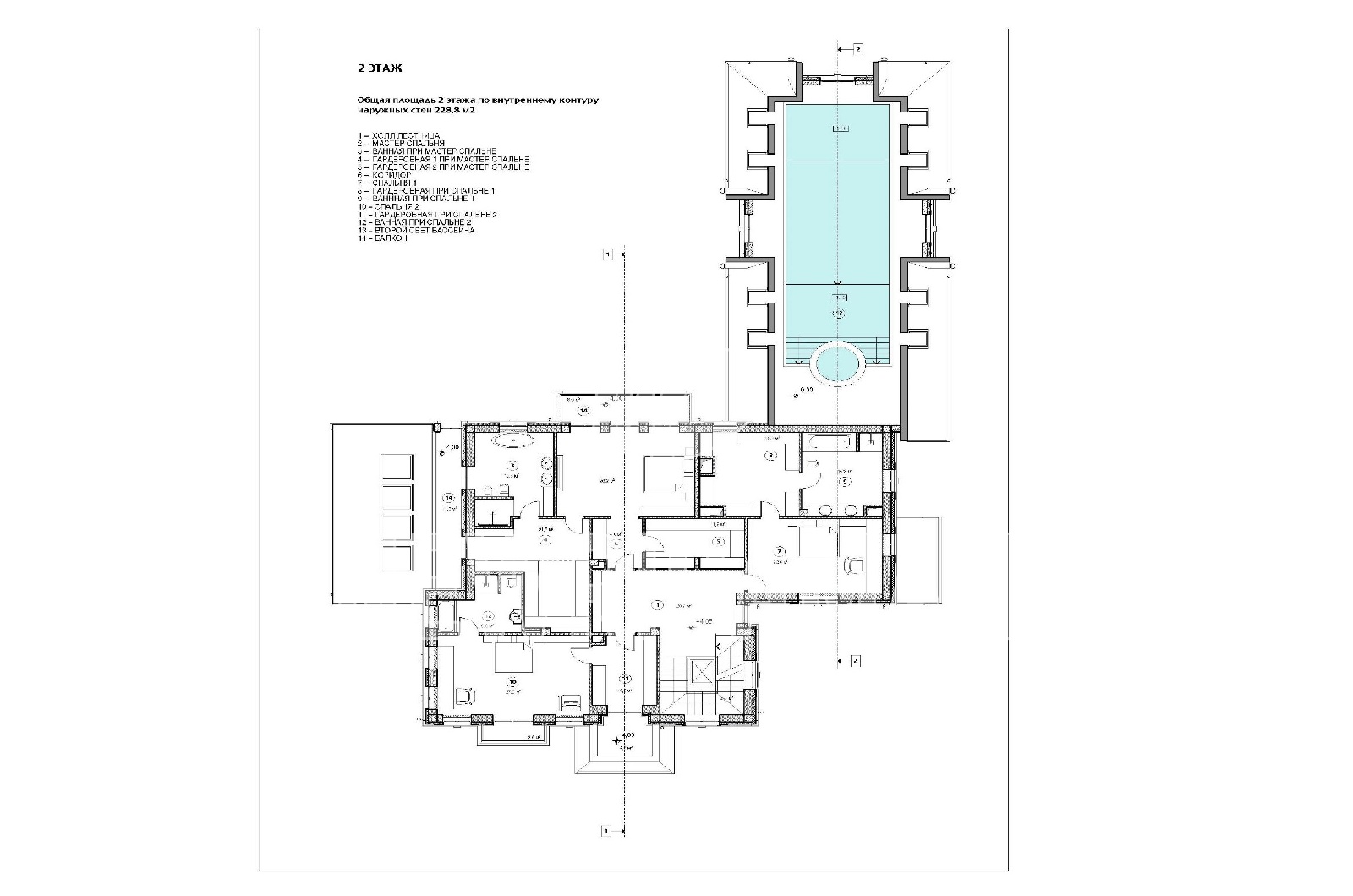
2 этаж - балкон, мастер-спальня с ванной комнатой и двумя гардеробными- мужской и женской, 2 спальни со своими ванными комнатами и гардеробными.

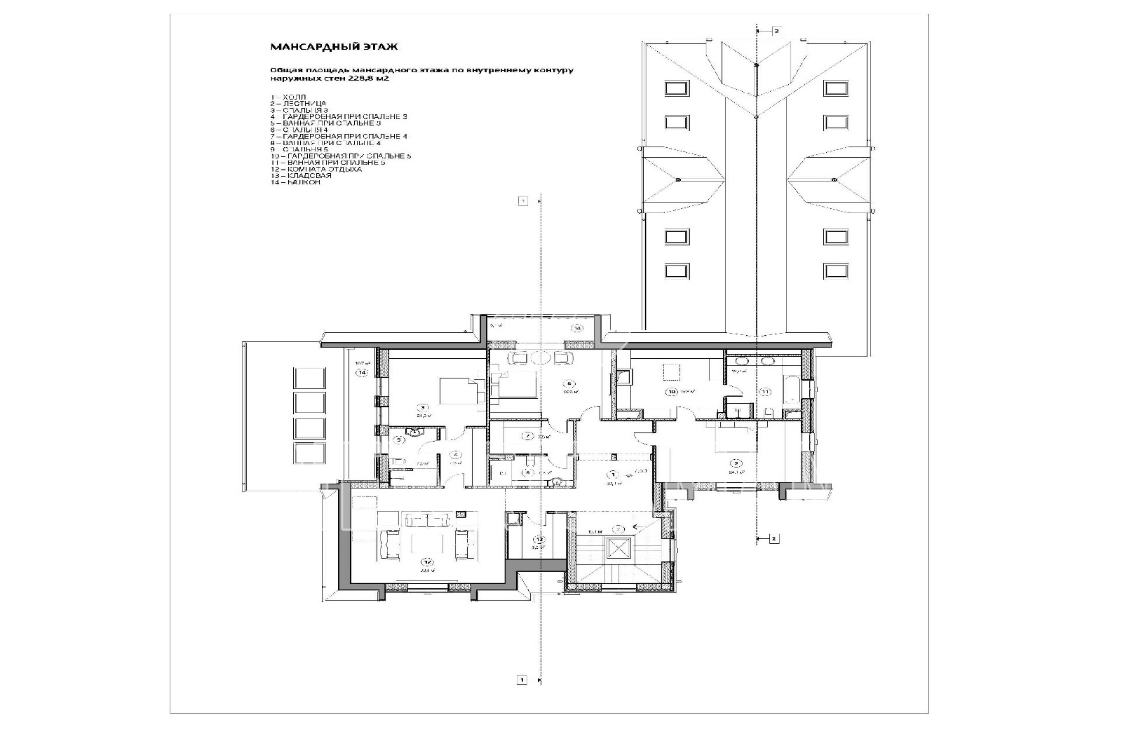
Мансарда - балкон, 3 спальни со своими гардеробными и ванными комнатами, комната отдыха.

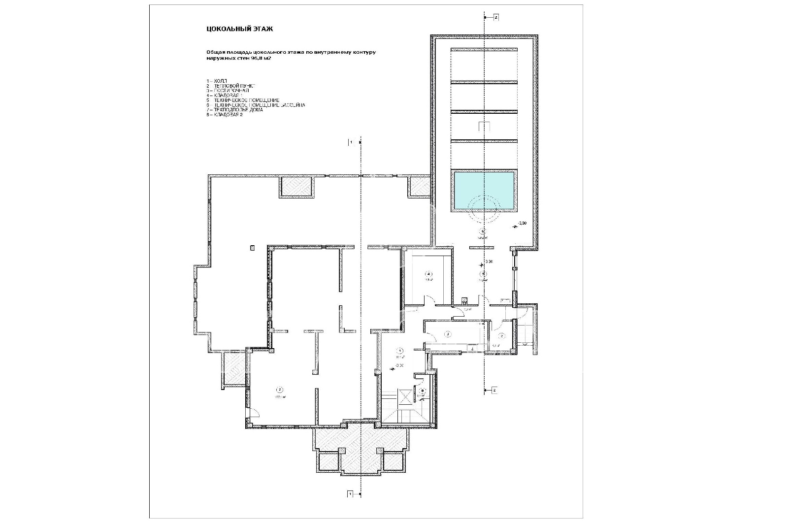
Цоколь - постирочная, кладовая, тех. помещение бассейна.

$
£
7.018.585 $
7.679 $ / м2
525.000.000
574.398 / м2
5.198.586 £
5.688 £ / м2
5.922.640 €
6.480 € / м2
Позвонить
Детали лота:
Площадь общая:
914 м2
Площадь участка:
30 соток
Количество спален:
6
Бассейн:
Есть
Сауна:
Есть
Состояние:
без отделки
Смотреть еще
посмотреть планировку
Поселок на карте
Похожие предложения:
Посёлок Трувиль

Коттеджный поселок Трувиль расположен на Минском шоссе, в 18 км от МКАД и в 9 км от города Одинцово. К поселку можно проехать, используя Минское, а также Можайское, Рублево-Успенское и Киевское шоссе. Серьёзным преимуществом является скоростная трасса в объезд Одинцово. Площадь поселка – лесная, 16,5 Га, из них 2Га – озера (каскад из 3х озер, глубина от 2,5 до 4 метров). Коттеджный поселок Трувиль разделен на 85 участков, площадь которых колеблется от 10 до 25 соток. Здесь предлагаются как коттеджи, так и таунхаусы и дуплексы. Площадь коттеджей от 350 до 650 кв.м. Более 50% района состоит из лесных массивов и зелёных прилесных территорий. Здесь нет промышленных производств  и перерабатывающих  заводов. Дома в посёлке выполнены в  оригинальном нормандском стиле, фасад каждого дома создан по индивидуальному проекту.

Инфраструктура внутренняя:
На территории посёлка создана собственная богатая инфраструктура: ресторан, фитнес-клуб с собственным СПА, закрытым бассейном и тренажёрным залом, детская площадка, небольшая гостиница, несколько парковочных зон для гостей посёлка, а также летняя площадка с открытым бассейном и кафе-баром. По периметру поселка построено внешнее ограждение, безопасность обеспечивает служба охраны.

Инфраструктура внешняя:
Рядом с поселком располагается Московская экономическая школа, Одинцовская гимназия, Сбербанки,Салоны красоты, Макдональдс, спортинг клуб

Рядом находятся поселки:
Лесной Городок, Довиль, Лапино, Таганьково, Николино

Полное описание
вы можете отрегулировать показ похожих этими кнопками
close